VILLA SINGOLA CON GIARDINO

In affitto
Villa
Nola
1.000 € / mese
Descrizione
🏡 VILLA SINGOLA CON GIARDINO – NOLA (Località Pizzone)
📍 A pochi passi da Cimitile, CIS/Interporto e Vulcano Buono

Stai cercando una villa spaziosa e indipendente in una zona strategica e ben collegata?
Dimensionekasa Nola propone in locazione una splendida villa singola con ampio giardino, ideale per famiglie che cercano comfort, privacy e vicinanza ai servizi principali!

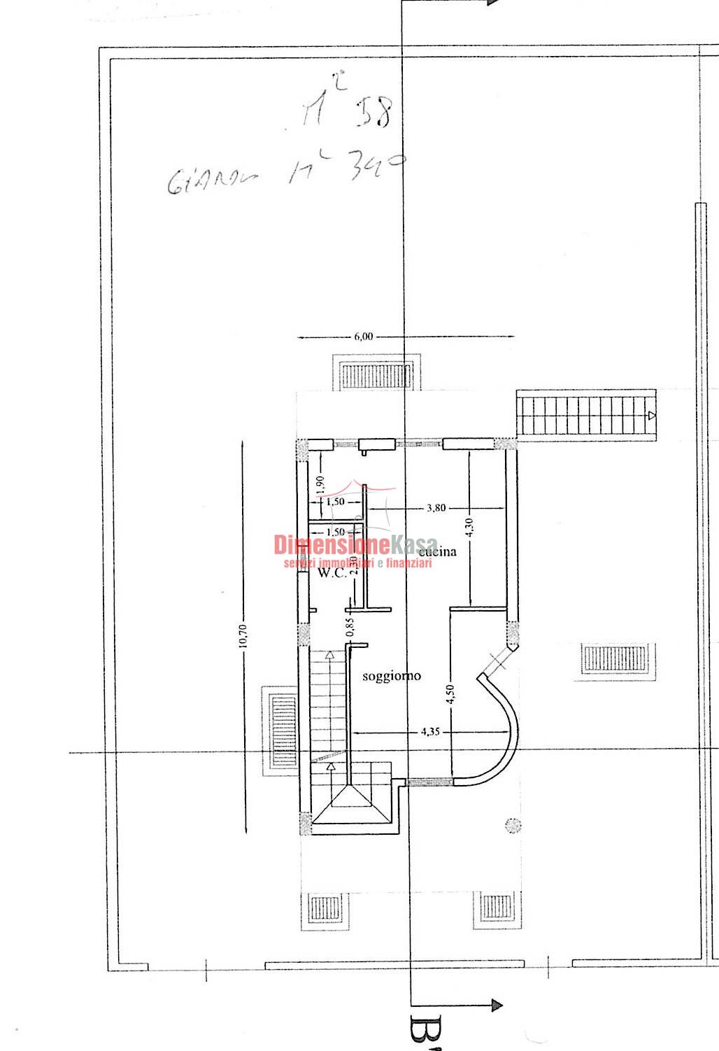
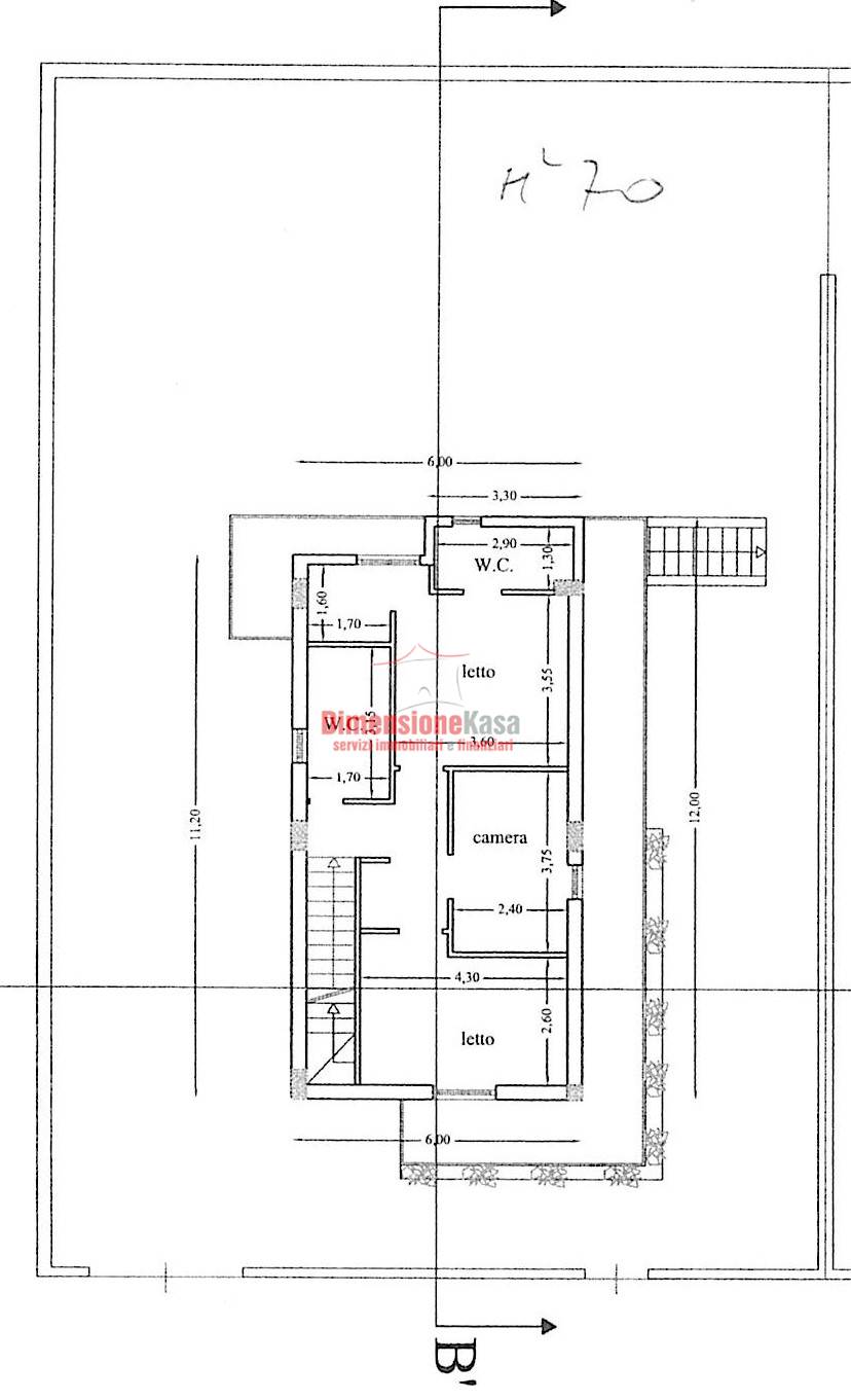
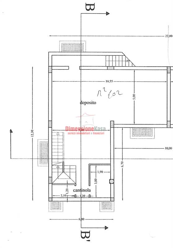
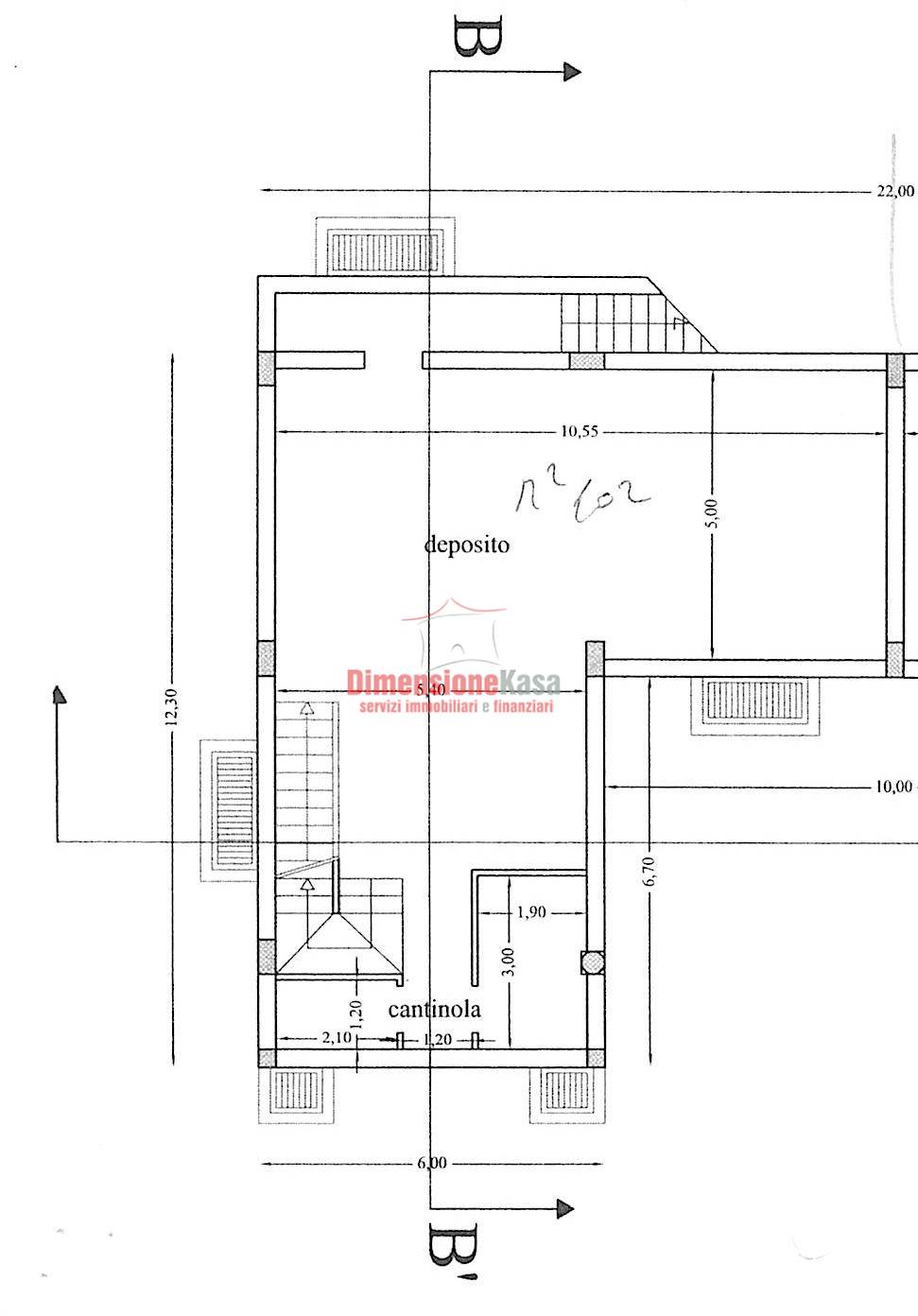
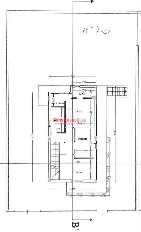
🔹 Superficie interna di 235 mq totali, disposta su 3 livelli:
âś… Piano Seminterrato (105 mq)
Tavernetta con camino, bagno, lavanderia e ingresso indipendente
âś… Piano Terra (60 mq)
Ampio salotto, cucina abitabile, lavanderia, 1 bagno e giardino di 340 mq perfetto per il tempo libero e relax.
âś… Primo Piano (70 mq)
3 camere da letto, 2 bagni (di cui uno in camera), 2 balconi.

đźš— Facilissimo accesso alla SS 7/Bis e all'ingresso autostradale.

📌 Condizioni:
🔸 Solo referenziati con Doppio Reddito; Disponibile da Metà Maggio


📞 Per info e visite:
📲 081 5129034 – WhatsApp 377 0290781
Caratteristiche principali
Codice:
A000527
CittĂ :
Nola
Categoria:
Villa
Locali:
5
Camere:
3
Bagni:
3
Mq:
220
Mq Giardino:
340
Anno:
2009
Classe energetica:
C
90 kWh/m²a
Life Style:
Quiet
Stato Immobile:
Buono
Grado:
Signorile
Giardino:
Privato
Tipo Cucina:
Abitabile
Riscaldamento:
Autonomo
Cauzione:
Due Mesi
Tipo Contratto:
4+4 Anni
Accessori
Antifurto
Doppi Vetri
Porta Blindata
Video Citofono
Mappa
via nazionale delle puglie, 155 - Nola (NA)
Cookie preference