Splendida Villa a Schiera

In vendita
Villa
Cicciano
320.000 €
Descrizione
🏑 Cicciano – Splendida Villa a Schiera con Finiture di Pregio e Ampio Spazio Esterno

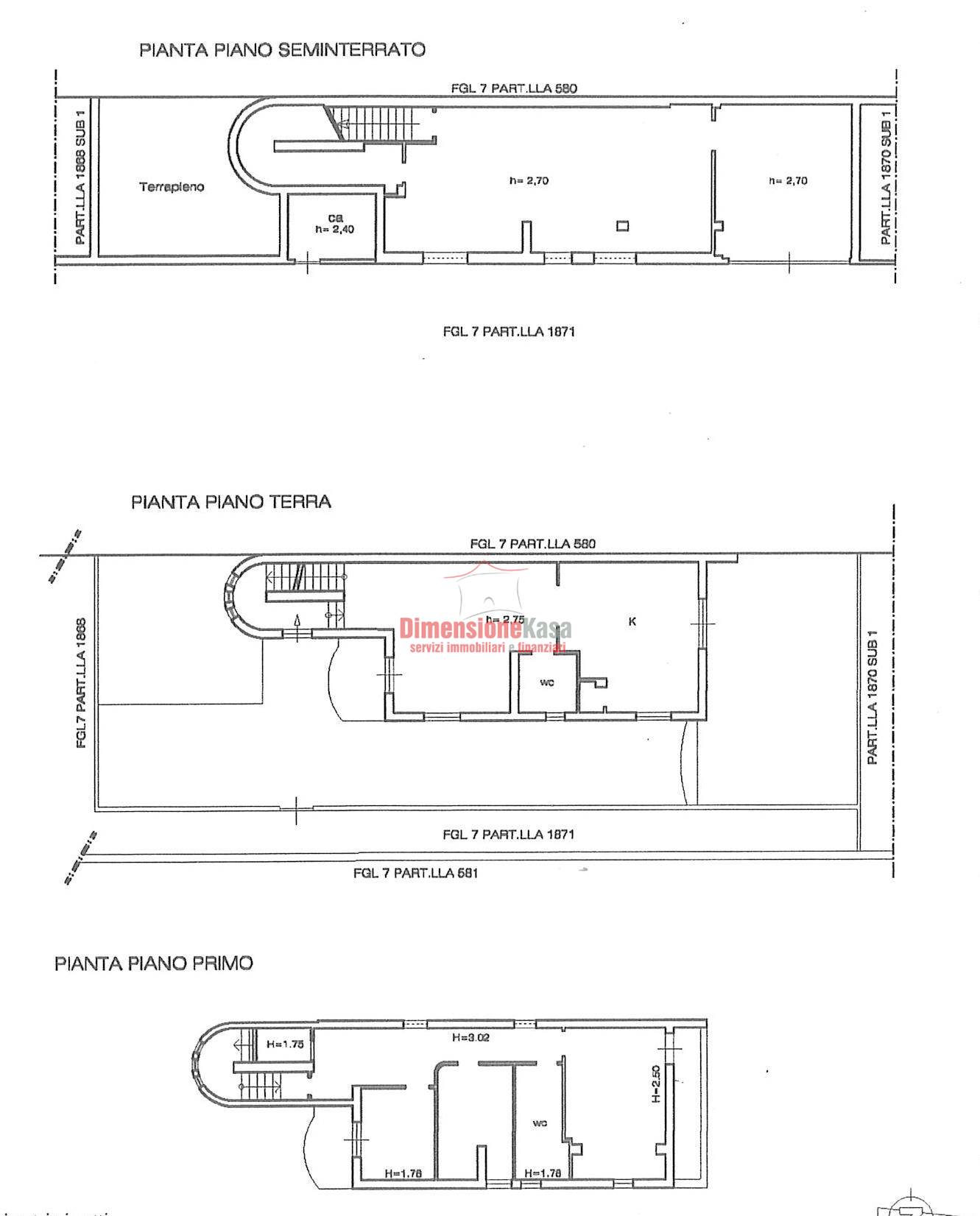
A pochi passi dal centro, in contesto signorile e riservato, Dimensionekasa propone in vendita esclusiva una villa a schiera libera su tre lati, di 220 mq complessivi, disposta su due livelli oltre al piano seminterrato.

✨ Composizione interna:

πŸ”Ή Piano Rialzato (70 mq)
Zona giorno elegante e funzionale composta da:
Ingresso in ampio salone con affaccio sul terrazzo, Cucina abitabile separata da porta a scrigno, con uscita su terrazzo di 40 mq coperto da pergotenda automatizzata, Bagno e ripostiglio/lavanderia.

πŸ”Ή Primo Piano (Zona Notte)

Camera matrimoniale con balcone, Due camerette, Bagno con vasca idromassaggio, ideale per momenti di relax.

πŸ”Ή Piano Seminterrato (75 mq)

Box auto di 23 mq, Piccola cantina con accesso indipendente (7 mq),

Ampia tavernetta con termo-camino policombustibile e zona lavanderia.

🌳 Esterni:
La villa Γ¨ circondata da 200 mq di spazio esterno, parte pavimentato e parte a verde, perfetto per vivere l’aria aperta in totale privacy.

πŸ’Ž Dotazioni e comfort:

Cappotto termico

Predisposizione allarme e aria condizionata

Impianto di filo diffusione

Autoclave

Impianto elettrico sezionato a zone

Finiture di pregio

πŸ“ Posizione:
Zona residenziale e tranquilla, ma a pochi minuti dal centro e da tutti i principali servizi.

πŸ“ž Da vedere! Contattaci per una visita:
☎️ 081 512 9034
πŸ“± WhatsApp 377 0290781
🌐 www.dimensionekasa.it
Caratteristiche principali
Codice:
V001491
CittΓ :
Cicciano
Categoria:
Villa
Spese condominiali:
120 € / anno
Locali:
5
Camere:
3
Bagni:
3
Mq:
220
Box:
1
Mq Box:
23
Balconi:
3
Mq Balcone:
20
Terrazzi:
1
mq Terrazzo:
200
Anno:
2012
Classe energetica:
C
157 kWh/mΒ²a
Stato Immobile:
Ottimo
Grado:
Signorile
Posizione:
Centro
Panorama:
Vista Giardino
Lati Liberi:
2
Giardino:
Privato
Tipo Soggiorno:
Salone
Tipo Cucina:
Abitabile
Riscaldamento:
Autonomo
Tipo Riscaldam.:
Termocamino
Tipo Impianto:
Radiatori
Raffrescamento:
Split
Accessori
Antifurto
Aria Condizionata
Camino
Doppi Vetri
Porta Blindata
Vasca Idromassaggio
Video Citofono
Zanzariere
Mappa
via monte della taglia, 10 - Cicciano (NA)
Virtual tour
Video
Planimetrie
Cookie preference