APPARTAMENTO IN VENDITA ARREDATO

In vendita
3 locali
Nola
150.000 €
Descrizione
🏠 APPARTAMENTO RISTRUTTURATO IN VENDITA A NOLA – ZONA STATUA SAN PAOLINO 🏠
πŸ“¦ Pronto da abitare – devi solo portare la valigia!

Cerchi una soluzione chiavi in mano, elegante e funzionale, nel cuore di Nola?
🎯 Abbiamo l’appartamento perfetto per te!

πŸ“ Zona centrale e servita, a pochi passi dalla statua di San Paolino
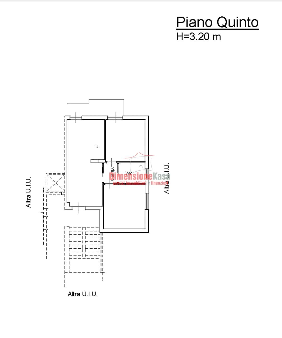
πŸ“ 75 mq al 5Β° piano con ascensore
πŸ› οΈ Ristrutturato a nuovo con finiture moderne
L' appartamento e' in fase di ultimazione

✨ Composizione:

πŸ›‹οΈ Cucina- salone con parete attrezzata e divano

🍽️ Cucina completa (con lavastoviglie, stoviglie incluse!)

πŸ›οΈ Camera matrimoniale con armadio scorrevole e balcone

πŸ›οΈ Cameretta a ponte con due letti, scrivania e materassi

🚿 Bagno finestrato con lavatrice inclusa

🌬️ Climatizzatori con scheda

πŸͺŸ Infissi in PVC doppio vetro e tapparelle elettriche

πŸ›‹οΈ VENDUTO ARREDATO!
Tutto incluso: mobili, elettrodomestici, stoviglie... non manca nulla!

πŸ’Έ Condominio solo 16 €/mese
πŸ“¦ Pronto all’uso – basta entrare e iniziare a vivere!

πŸ“ž Contattaci ora per info o per fissare una visita! 081 5129034 WhatsApp 377 0290781
πŸ“ Non lasciartelo sfuggire: immobili cosΓ¬ non restano a lungo sul mercato!
Caratteristiche principali
Codice:
V001888
CittΓ :
Nola
Categoria:
3 locali
Locali:
3
Mq:
75
Classe energetica:
G
Stato Immobile:
Nuovo
Grado:
Signorile
Posizione:
Centro
Raffrescamento:
Split
Infissi:
PVC Doppio Vetro
Serramenti:
Nuovo
Persiana:
Tapparella PVC
Accessori
Aria Condizionata
Ascensore
Doppi Vetri
Impianto Domotica
Porta Blindata
Tapparelle Elettriche
Mappa
Via mario de sena - Nola (NA)
Video
Planimetrie
Cookie preference