🏡 Graziosa Soluzione Indipendente

In vendita
Casa singola
Liveri
135.000 €
Descrizione
🏡 Graziosa Soluzione Indipendente a Liveri – Zona Centrale

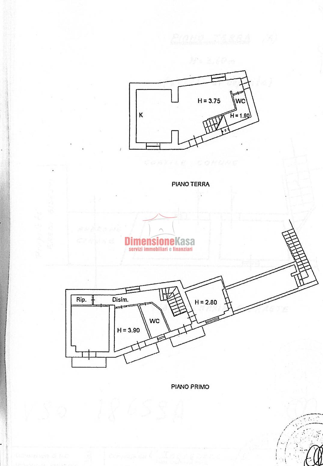
A pochi passi dal centro di Liveri, in contesto tranquillo ma ben servito, Dimensionekasa Nola propone in vendita una soluzione indipendente disposta su due livelli per un totale di 145 mq, oltre due cantine di 19 mq complessivi.

🔹 Piano Terra (55 mq):
Ingresso in salone, cucina abitabile, bagno e scala interna di collegamento al piano superiore.

🔹 Primo Piano(65):
Disimpegno con ripostiglio, camera matrimoniale, cameretta con balcone, bagno e terza camera/studio con accesso diretto a terrazzo a livello di 13 mq e secondo ingresso indipendente da scala esterna di proprietà esclusiva.

L’immobile è ideale per chi cerca una casa indipendente con spazi comodi e doppio accesso, a pochi minuti dai principali servizi.

📲 Chiamaci per una visita:
☎️ 081 5129034 – 📱 WhatsApp 377 0290781
🌐 www.dimensionekasa.it
Caratteristiche principali
Codice:
V001898
Città:
Liveri
Categoria:
Casa singola
Locali:
4
Camere:
3
Bagni:
2
Mq:
155
Balconi:
3
Mq Balcone:
10
Terrazzi:
1
mq Terrazzo:
13
Classe energetica:
D
80 kWh/m²a
Stato Immobile:
Buono
Grado:
Medio
Posizione:
Centro
Lati Liberi:
2
Tipo Soggiorno:
Salone
Tipo Cucina:
Abitabile
Riscaldamento:
Autonomo
Tipo Riscaldam.:
Caldaia
Tipo Impianto:
Radiatori
Raffrescamento:
Split
Accessori
Aria Condizionata
Mappa
via santa maria a parete - Liveri (NA)
Cookie preference