Appartamenti di Nuova Costruzione in vendita a Marigliano

In vendita
Appartamento
Marigliano
280.000 €
Descrizione
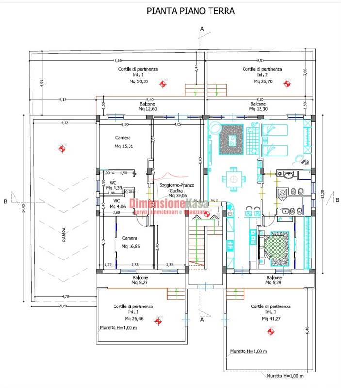
Nuova Costruzione – Piccolo Fabbricato di soli 4 Appartamenti
2 Appartamenti con Giardino Privato e 2 Appartamenti con Terrazzo di copertura esclusivo ed attrezzato tutti con Design Moderno.

In elegante contesto residenziale di nuova realizzazione, proponiamo in vendita 4 appartamenti di moderna concezione, progettati per offrire comfort, luminosità e funzionalità.

Le soluzioni, curate nei minimi dettagli, presentano una distribuzione interna razionale e contemporanea di circa 95mq totali interni oltre a spazio esterno attrezzato con Piscina privata Jacuzzi 6 posti:

Ampia zona giorno open space di circa 39 mq

2 camere da letto

Doppi servizi

Balconi

Giardini di pertinenza esclusiva fino a oltre 80 mq (per le unità al piano terra)

Gli ambienti risultano luminosi grazie alle ampie aperture esterne e alla doppia esposizione.

Il fabbricato si distingue per:
Architettura moderna
Linee pulite ed eleganti
Spazi esterni vivibili
Contesto riservato
Tutti con Garage e Posto Auto. Prezzi da € 280000

Soluzioni ideali sia per famiglie che per chi desidera una casa di nuova generazione con spazi esterni privati.

Consegna prevista: Giugno 2026
Classe energetica: A

Per informazioni e prenotazioni visite: 0815129034 / 3453596039
Dimensionekasa Nola
Caratteristiche principali
Codice:
V001931
Città:
Marigliano
Categoria:
Appartamento
Locali:
3
Camere:
2
Bagni:
2
Mq:
95
Box:
1
Mq Box:
28
Posti auto:
1
Mq Giardino:
80
Balconi:
2
Mq Balcone:
21
Piano:
Rialzato
Anno:
2026
Classe energetica:
A
Stato Immobile:
In Costruzione
Grado:
Signorile
Posizione:
Periferia
Panorama:
Vista Aperta
Orientamento:
Sud Nord
Lati Liberi:
2
Giardino:
Privato
Arredi:
Non Arredato
Tipo Soggiorno:
Soggiorno
Tipo Cucina:
A Vista
Riscaldamento:
Autonomo
Tipo Riscaldam.:
Caldaia
Tipo Impianto:
Radiatori
Fonte Energetica:
Metano
Raffrescamento:
Split
Infissi:
Acciaio Doppio Vetro
Accessori
Antifurto
Aria Condizionata
Cancello Elettrico
Doppi Vetri
Doppio Ingresso
Inferriate
Piscina
Porta Blindata
Video Citofono
Mappa
via vittorio veneto - Marigliano (NA)
Distanze
Posizione
Centro2 km
Istruzione
Scuola materna700 m
Scuola elementare700 m
Mezzi di trasporto
Stazione dei treni1 km
Altri servizi
Supermercato200 m
Video
Cookie preference