Villa di nuova costruzione in Vendita a Marigliano

In vendita
Villa
Marigliano
500.000 €
Descrizione
NUOVA VILLA DI DESIGN CON GIARDINO E DOPPIA PISCINA – ESCLUSIVA RESIDENZA MODERNA.

In contesto riservato e di nuova realizzazione, proponiamo in vendita 2 ville esclusive dal design moderno, progettata per offrire comfort, privacy e qualità abitativa ai massimi livelli.

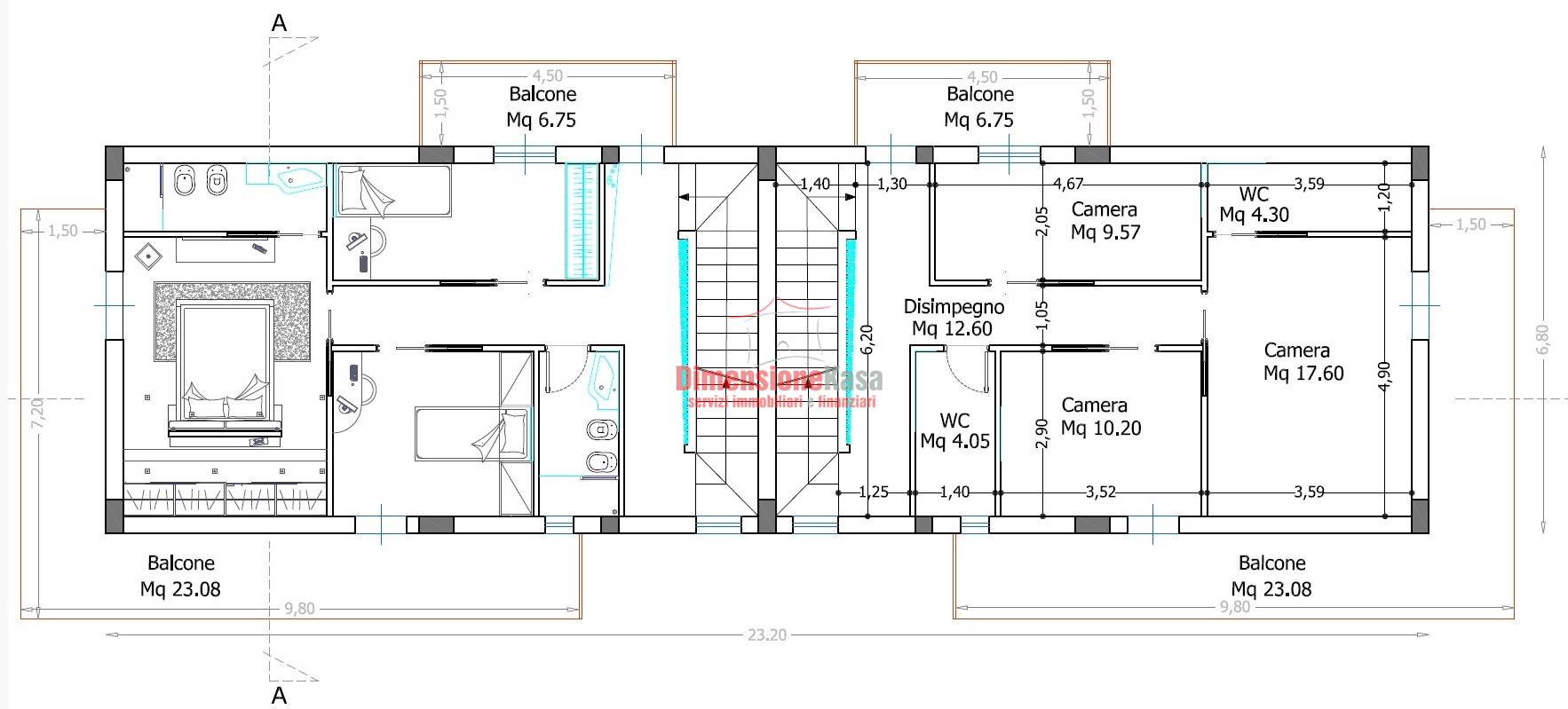
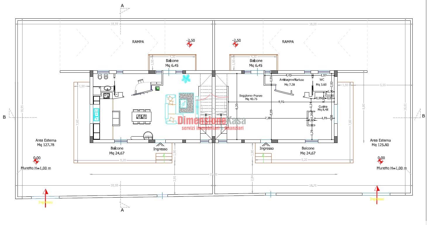
La soluzione si sviluppa su 3 livelli con Ascensore interno e sono caratterizzate da linee architettoniche contemporanee, ampie superfici vetrate e spazi esterni vivibili.

La villa dispone di:

🌿 Giardino privato su 3 lati.

🏊 Piscina interrata esclusiva più Jacuzzi per 6 persone

🌞 Ampi terrazzi panoramici con pergolati

🚗 Area parcheggio interna al Giardino

🏡 Zona living luminosa con affaccio diretto sugli spazi esterni

🛏 Zona notte ben distribuita

🛁 Tripli servizi

🔒 Contesto riservato e indipendente

L'abitazione sarà realizzata con materiali di pregio, impianti di ultima generazione e soluzioni ad alta efficienza energetica, garantendo comfort abitativo e risparmio nei consumi.

Ideale per chi desidera una casa moderna, elegante e funzionale, senza rinunciare alla tranquillità e alla privacy.

📍 Soluzione perfetta per famiglie o per chi è alla ricerca di un immobile esclusivo di nuova costruzione.
Prezzi da € 500.000,00 interna e 550.000€ su strada.
Per informazioni e visite: 0815129034 / 3453596039
Caratteristiche principali
Codice:
V001932
Città:
Marigliano
Categoria:
Villa
Locali:
4
Camere:
3
Bagni:
3
Mq:
155
Posti auto:
2
Mq Giardino:
130
Balconi:
4
Mq Balcone:
61
Terrazzi:
1
mq Terrazzo:
30
Piano:
Rialzato
Anno:
2026
Classe energetica:
A1
90 kWh/m²a
Stato Immobile:
In Costruzione
Grado:
Signorile
Posizione:
Periferia
Orientamento:
Est Nord Ovest
Lati Liberi:
3
Giardino:
Privato
Arredi:
Non Arredato
Tipo Soggiorno:
Salone
Tipo Cucina:
Semi Abitabile
Riscaldamento:
Autonomo
Tipo Impianto:
Radiatori
Fonte Energetica:
Metano
Infissi:
Alluminio Triplo Vetro
Serramenti:
Nuovo
Accessori
Antifurto
Aria Condizionata
Ascensore
Cancello Elettrico
Doppi Vetri
Doppio Ingresso
Impianto Domotica
Ingresso Indipendente
Porta Blindata
Ripostiglio
Video Citofono
Mappa
via Vittorio Veneto, 90 - Marigliano (NA)
Distanze
Posizione
Centro1,5 km
Istruzione
Scuola materna700 m
Scuola elementare700 m
Altri servizi
Supermercato200 m
Video
Cookie preference